
Merkmale
Funktion einer Einlauftasse
Das Deckenventil funktioniert als Einlauftasse und leitet Regenwasser über Scherenrohre in die Kanalisation
Verhinderung von Austreten des Mediums
Die Rückschlagkappe verhindert bei Leckagen das Austreten des Mediums auf die Schwimmdecke
Schutz des Deckenventil
Das Einlaufsieb schützt vor groben Schmutz, Laub und nistenden Vögeln
Funktion und Beschreibung

Deckenventil für Schwimmdachentwässerungsanlagen
Das Deckenventil PROTEGO® D/SR bzw. Typ D/SR-W hat die Funktion einer Einlauftasse, die das angesammelte Regenwasser von der Schwimmdecke über die Scherenrohre einer Schwimmdachentwässerungsanlage - z.B. Typ PROTEGO® SE/K oder Typ PROTEGO® SE/CK - in die Kanalisation ablaufen lässt.

Schutz vor grobem Schmutz, Laub und nistenden Vögeln
In der normalen Betriebsstellung ist das Deckenventil geöffnet. Die Rückschlagklappe verhindert bei eventuell auftretenden Leckagen ein Austreten des Einlagerungsmediums auf die Schwimmdecke. Das Einlaufsieb schützt das Deckenventil vor grobem Schmutz, Laub und auch vor nistenden Vögeln.
Produktdaten
Maßtabelle D/SR-W
| DN | 80 / 3" | 100 / 4" | 150 / 6" |
| a | 550 | 600 | 650 |
| b | 490 | 540 | 590 |
| c | 450 | 500 | 550 |
| d | 205 | 250 | 320 |
| e | 490 | 490 | 490 |
| f | 285 | 320 | 350 |
| g | 150 | 180 | 225 |
Abmessungen in mm
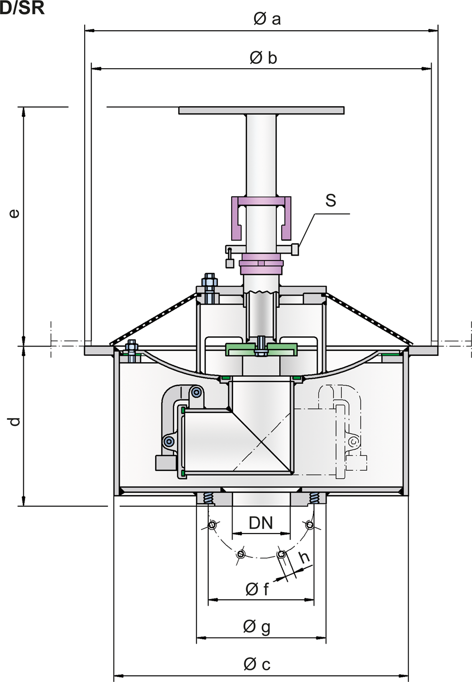
Maßtabelle D/SR
| DN | 80 / 3" | 100 / 4" | 150 / 6" |
| a | 550 | 600 | 650 |
| b | 490 | 540 | 590 |
| c | 450 | 500 | 550 |
| d | 240 | 280 | 330 |
| e | 490 | 490 | 490 |
| f | 160 | 180 | 240 |
| g | 200 | 220 | 285 |
Abmessungen in mm
Materialauswahl
| Ausführung | A | B |
| Gehäuse | Stahl | Edelstahl |
| Rückschlagkappe | Rotguss | Rotguss |
| Ventilteller | Stahl | Edelstahl |
| Kupplungsschnellverschluss | Stahl | Edelstahl |
| Dichtung | PUR | PUR |
Bei dem Einsatz der Geräte ist auf eine ausreichende Korrosionsfestigkeit gegenüber den vorhandenen Medien zu achten. Gegebenenfalls müssen Ausführungen in spezieller Edelstahlqualität Verwendung finden.
Deckenventil PROTEGO® D/SR in Kombination mit der Schwimmdachentwässerungsanlage PROTEGO® SE/CK

Deckenventil PROTEGO® D/SR-W in Kombination mit der Schwimmdachentwässerungsanlage PROTEGO® SE/K



Wenn Sie Fragen, Feedback oder weitere Anregungen haben, steht Ihnen unser Expertenteam steht Ihnen gerne zur Verfügung.











