
Merkmale
Oberirdische Tanks
Für oberiridisch stehende oder liegende Tanks zur Lagerung von nicht brennbaren und brennbaren Flüssigkeiten
Keine Notbelüftung
Die Geräte sind ausreichend für die Beatmung von Lagertanks und ersetzen keine Notbelüftung
Einfache Kontrolle
Die Beladung des Trockengutes kann über eine Prüfpatrone einfach kontrolliert werden
Regenierbar
Das Trockengut ist regenerierbar
Trockengut und Indikator-Trockenperlen
Das Trockengut und die Indikator-Trockenperlen werden nicht mitgeliefert, können aber optional mitbestellt werden
KC®-Trockenperlen
Als Trockengut kommen KC®-Trockenperlen und bei der Prüfpatrone KC®-Indikator-Trockenperlen zum Einsatz
Funktion und Beschreibung

Hochleistungs-Lufttrocknungsaggregate für Lagertanks
Lufttrocknungsaggregate des Typs LA bzw. LA/V von PROTEGO® kommen immer dann zum Einsatz, wenn bei einer atmosphärischen Belüftung von Lagertanks die angesaugte Luft getrocknet werden muss und aus verfahrenstechnischen Gründen nur wenig oder keine Luftfeuchtigkeit dem Behälter oder dem Einlagerungsprodukt zugeführt werden darf. Sie werden bevorzugt bei oberirdisch stehenden oder liegenden Tanks zur Lagerung von nicht brennbaren und brennbaren Flüssigkeiten eingesetzt, die betriebsmäßig nicht mit feuchter Luft beatmet werden dürfen.
Das Einzelaggregat LA besteht im Wesentlichen aus dem Trockenmittelbehälter (1), der mit Schnellverschlusselementen (2) an den fest zu installierenden Anschlusskopf (3) mit Flanschanschluss nach DIN 2501 oder nach anderer internationaler Norm angeschlossen wird. Der Siebboden (4) mit dem Schutzsieb (5) ist im Trockenmittelbehälter (1) fest eingeschweißt. Der obere Siebdeckel (6) ist lose eingelegt, so dass dieser in einfacher Weise entfernt und das Trockenmittel eingegeben bzw. herausgenommen werden kann. Im Anschlusskopf (3) befindet sich die Verschlussplatte (7), die bei Abnahme des Behälters die Öffnung des Anschlusskopfes abschließt, damit während der Zeit des Auswechselns des Behälters keine ungetrocknete Luft angesaugt werden kann.
Im oberen Teil des Trockenmittelbehälters (1) ist die Prüfpatrone (8) integriert. Diese Prüfpatrone kann während des Betriebs herausgenommen werden. Sie zeigt an, ob das Trockenmittel mit Feuchtigkeit beladen ist und zur Regenerierung ausgewechselt werden muss.
Je nach geforderten Drucksatzleistungen bzw. vorgeschriebenen Druckverlusten werden die Trockenmittelbehälter in zwei Größen -Typ I bzw. Typ II - geliefert und im Rahmen eines Baukastensystems zu größeren Leistungseinheiten komplettiert.

Effektive Lufttrocknung mit KC®-Trockenperlen
Als Trockengut kommen KC®-Trockenperlen zum Einsatz. Die Prüfpatrone (Bild 1) wird mit speziellen KC®-Indikator-Trockenperlen gefüllt. Die erforderlichen Füllmengen sind der zugehörigen Betriebsanleitung zu entnehmen.
Das Lufttrocknungsaggregat Typ LA/V entspricht im Wesentlichen dem Typ LA mit zusätzlich in die Ansaugöffnung integriertem auswechselbarem Unterdruckventil (9) mit Schutzsieb und Ventilteller (10). Wenn nicht über das Lufttrocknungsaggregat angesaugt wird, ist das Gerät zur Atmosphäre hin abgeschlossen und dicht. Damit kann sich das Trockenmittel bei hoher Luftfeuchtigkeit nicht im unteren Bereich des Trockenmittelbehälters beladen.
Integrative Lufttrocknungslösungen für Tank-Ent- und Belüftungssysteme
Die Lufttrocknungsaggregate des Typs LA bzw. LA/V werden in ein komplettes Tank-Ent- und Belüftungssystem integriert.
Wenn es sich bei dem Einlagerungsmedium um eine brennbare Flüssigkeit handelt, sind neben dem Lufttrocknungsaggregat sowie den Über- und Unterdruckventilen auch Flammendurchschlagsicherungen zu installieren. Je nach den vorliegenden Betriebsbedingungen ist auch die Kombination von anderen Ent- und Belüftungsventilen mit integriertem Lufttrocknungsaggregat möglich.
Überwachung und Austausch des Trockenmittels im Lufttrocknungsaggregat
Beim Erreichen des vorgesehenen Unterdrucks im Tank öffnet das dem Lufttrocknungsaggregat nachgeschaltete Belüftungsventil - z.B. Typ DZ/T oder DV/ZU von PROTEGO® - und atmosphärische Luft wird über das Trocknungsaggregat LA angesaugt, wobei das Trockenmittel - KC®-Trockenperlen - die atmosphärische Feuchte aufnimmt.
Bei entsprechender Beladung muss das Trockenmittel ausgewechselt und regeneriert werden. Mit Hilfe einer Prüfpatrone kann in einfacher Weise festgestellt werden, ob das Trockenmittel mit Feuchtigkeit gesättigt ist.
Überdruckregelung und Entlüftung in Tankventilationssystemen
Wird im Beispiel nach Bild 4 oder 5 der vorgeschriebene Überdruck im Tank erreicht, öffnet sich die Überdruckseite des kombinierten Ventils, z.B. des Typs VD/SV bzw. des Ventils DV/ZU von PROTEGO® und das Produktdampf/Luft-Gemisch wird in die Atmosphäre abgegeben. Es besteht auch die Möglichkeit, die Produktdampf/Luft-Gemische über ein geeignetes Ventil, z.B. Typ DV/ZU von PROTEGO®, einer Abgasleitung bzw. einem Abgassystem zuzuführen. Bei Überdruck im Tank bleibt die Unterdruckseite der vorgenannten Ventile geschlossen und die Produktdämpfe können nicht in das Trockenmittel eindringen.
Kombinierten Über- und Unterdruckventil
Bei größeren Behältern empfiehlt sich der Einsatz eines kombinierten Über- und Unterdruckventils, z.B. PROTEGO® VD/SV, damit über die Unterdruckseite bei Versagen des Lufttrocknungsaggregates im Notfall atmosphärische Luft direkt angesaugt werden kann. Eine atmosphärische direkte Notbelüftung ist häufig auch deshalb erforderlich, weil das Lufttrocknungsaggregat nicht für den zu berechnenden maximalen Volumenstrom (Pumpenleistung und thermische Leistung nach EN 14015 oder API 2000) ausgelegt werden kann und auch nicht ausgelegt werden muss, da die maximal mögliche thermische Leistung nur sehr selten auftritt und es deshalb im Allgemeinen genügt, das Lufttrocknungsaggregat nach der Pumpenleistung für Entleerung und ca. 25% des thermischen Anteils zu dimensionieren.
Lufttrocknungsaggregat mit integriertem Unterdruckventil
Die Funktion des Lufttrocknungsaggregates Typ LA/V entspricht im Wesentlichen der des Typs LA. Die Ansaugöffnung wird hier jedoch erst durch ein Unterdruckventil freigegeben, wenn im gesamten Belüftungssystem, d.h. im Tank und Trocknungsbehälter ein Unterdruck herrscht, der dem Ansprechdruck des Unterdruckventils entspricht.
Die Geräte sind für Belüftungsleistungen konzipiert, die für die Beatmung von Lagertanks ausreichen. Sie ersetzen jedoch nicht die für die Notbelüftung vorgesehenen Ventile.
Kontrolle und Kombination von Lufttrocknungsaggregaten
Die Beladung des Trockengutes kann über eine Prüfpatrone einfach kontrolliert werden. Das Trockengut ist regenerierbar. Die Lufttrocknungsaggregate LA bzw. LA/V werden - gegebenenfalls mit den dazugehörigen Ent- und Belüftungsventilen - ohne eingefülltes Trockengut und ohne Indikator-Trockenperlen geliefert. Optional können Trockengut bzw. die Indikatorperlen mitbestellt werden.
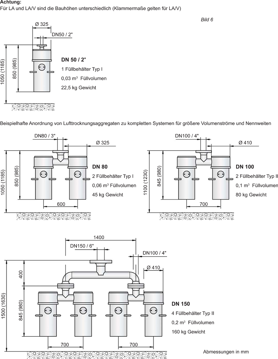
In Bild 6 sind die Kombinationsmöglichkeiten der Lufttrocknungsaggregate PROTEGO® LA und LA/V zu kompletten Einheiten dargestellt. Diesem Blatt können wiederum auch die Baumaße sowie die Füllvolumen bzw. Füllgewichte entnommen werden.
Produktdaten
Materialauswahl Typ LA
| Ausführung | A | B |
| Gehäuse | Stahl | Edelstahl |
| Siebboden | Edelstahl | Edelstahl |
| Schutzsieb | Edelstahl | Edelstahl |
| Verschluss | Stahl | Edelstahl |
Materialauswahl Typ LA/V
| Ausführung | A | B |
| Gehäuse | Stahl | Edelstahl |
| Siebboden | Stahl | Edelstahl |
| Schutzsieb | Edelstahl | Edelstahl |
| Verschluss | Stahl | Edelstahl |
| Ventileinsatz | Edelstahl | Edelstahl |
Materialauswahl für Unterdruckventil
| Ausführung | A | B | C |
| Druckbereich | -3,5 bis -5,0 | ≥-5,0 bis -14 | ≥-14 bis -35 |
| Ventilteller | Aluminium | Edelstahl | Edelstahl |
| Abdichtung | FEP | FEP | metallisch |
Volumenstromdiagramm

Die Leistungsangaben gelten für das Einzelaggregat PROTEGO® LA und beziehen sich auf KC®-Trockenperlenfüllgut von 2 bis 5 mm Durchmesser. Bei dem Typ PROTEGO® LA/V ergibt sich der Gesamtdruckverlust ∆pLA/V aus dem Differenzdruck ∆pLA zuzüglich dem Einstelldruck des Rückschlagventils pVR.






Wenn Sie Fragen, Feedback oder weitere Anregungen haben, steht Ihnen unser Expertenteam steht Ihnen gerne zur Verfügung.











