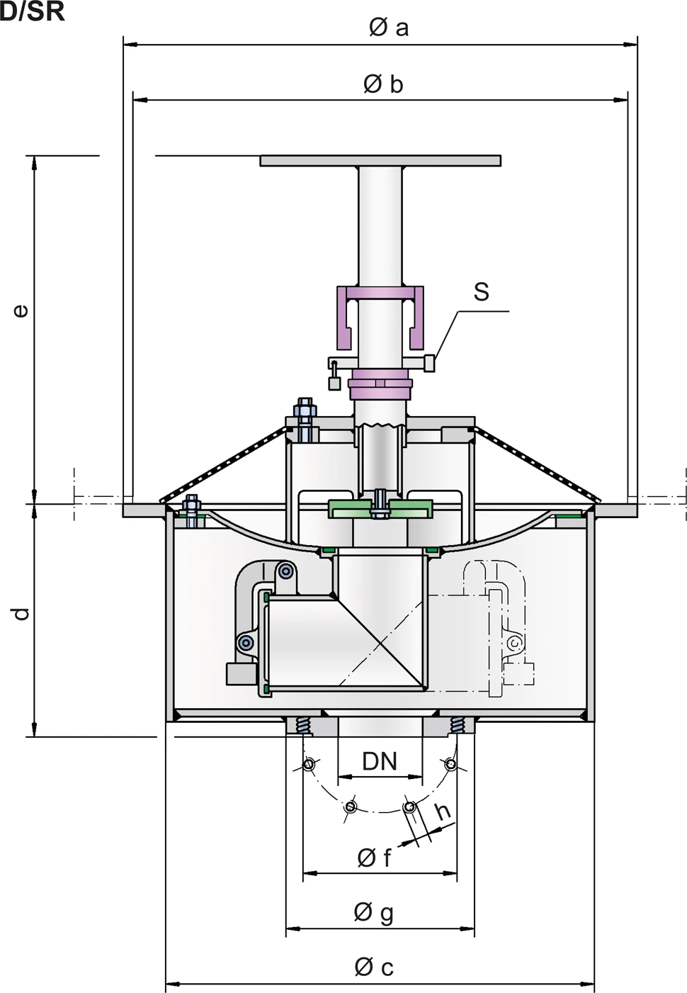
Features
Function of an Inlet Cup
The ceiling valve functions as an inlet cup and directs rainwater through scissor pipes into the sewer system
Prevention of medium Leakage
The non-return cap prevents medium leakage onto the floating roof in case of leaks
Protection of the Ceiling Valve
The inlet screen protects against coarse dirt, leaves, and nesting birds
Function and Description
Válvula de drenagem do teto para sistemas de drenagem de tetos flutuantes
A válvula de teto PROTEGO® D/SR ou tipo D/SR-W tem a função de um recipiente, que escoa a água de chuva acumulada do teto flutuante através dos tubos cisalhantes de um sistema de drenagem de teto flutuante - p.ex. tipo PROTEGO® SE/K ou tipo PROTEGO® SE/CK - à rede de esgotos.
Proteção contra detritos, folhas e ninhos de pássaros
Na posição de operação normal, a válvula de teto está aberta. Em caso de eventuais vazamentos, a portinhola de retenção impede a saída do fluido de armazenamento para o teto flutuante. A peneira de entrada protege a válvula de teto contra sujeira grossa, folhas e também de ninhos de pássaros.
Product Data
Tabela de dimensões D/SR-W
| DN | 80 / 3" | 100 / 4" | 150 / 6" |
| a | 550 | 600 | 650 |
| b | 490 | 540 | 590 |
| c | 450 | 500 | 550 |
| d | 205 | 250 | 320 |
| e | 490 | 490 | 490 |
| f | 285 | 320 | 350 |
| g | 150 | 180 | 225 |
Dimensões em mm
Tabela de dimensões D/SR
| DN | 80 / 3" | 100 / 4" | 150 / 6" |
| a | 550 | 600 | 650 |
| b | 490 | 540 | 590 |
| c | 450 | 500 | 550 |
| d | 240 | 280 | 330 |
| e | 490 | 490 | 490 |
| f | 160 | 180 | 240 |
| g | 200 | 220 | 285 |
Dimensões em mm
Seleção do material
| Versão | A | B |
| Corpo | Aço | Aço inoxidável |
| Portinhola | Bronze | Bronze |
| Obturador da válvula | Aço | Aço inoxidável |
| Engate de fechamento | Aço | Aço inoxidável |
| Vedação | PUR | PUR |
Ao usar os equipamentos é necessário observar uma resistência à corrosão suficiente em relação aos fluidos existentes. Caso necessário, devem ser usadas versões em aço inoxidável de qualidade especial.
Válvula de teto PROTEGO® D/SR em combinação com o sistema de drenagem de teto flutuante PROTEGO® SE/CK
Válvula de teto PROTEGO® D/SR-W em combinação com o sistema de drenagem de teto flutuante PROTEGO® SE/K
Applications
Se você tiver alguma dúvida, comentário ou sugestão, nossa equipe de especialistas terá prazer em ajudá-lo.








