
Features
Above-ground Tanks
For above-ground vertical or horizontal tanks used for the storage of non-flammable and flammable liquids
No Emergency Ventilation
The devices are sufficient for the ventilation of storage tanks and do not replace emergency ventilation
Easy Inspection
The loading of the drying agent can be easily monitored via a test cartridge
Regenerable
The drying agent is regenerable
Drying Agent and Control Drying Pearls
The drying agent and control drying pearls are not included, but can be optionally ordered
KC®-Drying Pearls
KC® drying pearls are used as the drying agent, and KC® indicator drying pearls are used in the test cartridge
Function and Description

High-Performance Air Drying Units for Storage Tanks
PROTEGO® Air-Drying Device of Types LA or LA/V is used when suction air must be dried for atmospheric venting of storage tanks where only little or no humidity is allowed to get into the tank or the stored
product
Produit
Includes equipment, protective systems, devices, components and combinations of these.
due to the process engineering. They are usually used in vertical or horizontal aboveground tanks which store non-flammable or flammable liquids, and which must not be vented with humid air for safe operation.
The single
device
Appareil
A device is a pipe component that influences the media flow by opening, closing, or partially shutting off the flow channel or by dividing or mixing the media flow.
PROTEGO® LA mainly consists of the drying agent container (1). Its snap closing elements (2) connect it to the connection head (3) with flange connection according to DIN 2501 or to any other international standard.
The bottom screen (4) and the protective strainer (5) are firmly welded into the drying agent container (1). The upper strainer cover (6) is loose. It can be removed easily to add or remove the drying agent. The connection head (3) contains the sealing plate (7) that closes the connection head opening when taking the drying agent container off. No humid air can be sucked in when changing the drying agent container.
The upper part of the drying agent container (1) holds the integrated control cartridge (8). The control cartridge can be removed during operation. It shows if the drying agent contains humidity and has to be replaced for regeneration.
Depending on the required flow rates or prescribed pressure losses the drying agent containers are delivered in two sizes – type I or type II. As parts of a modular system they are assembled into larger performance units.
Effective Air Drying with KC® Drying Beads
KC® drying pearls are used as the drying agent. The control cartridge (figure 1) is filled with special KC® indicator drying pearls. The required filling levels are specified in the relevant operating instructions.
The
air-drying device
Appareil de séchage de l'air
An air drying apparatus is used for drying inlet air on atmospheric tank ventilation systems
type LA/V is essentially similar to type LA. Additionally, it has a replaceable
check valve
Soupape de retenue
A check valve allows flow of the operating media in one direction and prevents flow in the opposite direction.
(9) with protective strainer and
valve pallet
Clapet
Valve pallet is the generic term for the assembly that rests on the valve seat.
(10) integrated in the inlet connection. When no air is sucked in through the air-drying device the device is sealed and tight towards the atmosphere. So at high air humidity the drying agent in the lower area of the drying agent container cannot absorb moisture.
Integrated Air Drying Solutions for Tank Venting Systems
The FEP
diaphragm
Membrane
A diaphragm is a thin layer of material, which has a large surface area.
with air cushion sealing (figure 2) is used as valve pallet sealing up to pressure range II. From pressure range III, a lapped metallic sealing is used (figure 3). Air-drying devices of types LA or LA/V may be integrated into complete tank venting systems (see figures 4 and 5).
If flammable liquids are stored in the tank, then
Flame Arresters
Arrête-flammes
Device fitted to the opening of an enclosure, or to the connecting pipe work of a system of enclosures, and whose intended function is to allow flow but prevent the transmission of a flame.
have to be installed in addition to the air-drying device and the pressure and
vacuum
Dépression
Vacuum is the pressure in an enclosed space that is lower than the ambient pressure.
relief valves. Depending on the operating conditions it is also possible to combine other vent valves with the integrated air-drying device.
Monitoring and Replacement of Desiccant in the Air Drying Unit
When the
set vacuum
Set vacuum
Internal negative gauge pressure at which a vacuum valve first opens.
is reached in the tank, the
vacuum relief valve
Soupape de dépression
A vacuum relief valve is used to ventilate a part of the system and protects it from impermissible underpressure.
– for instance PROTEGO® type DZ/T or DV/ZU on figures 4 and 5 – connected to the air-drying device opens and the drying device LA sucks in atmospheric air while the drying agent (KC® drying pearls) absorbs the atmospheric humidity.
The drying agent must be replaced and regenerated when depleted. Using a control cartridge, it is easily possible to determine whether the drying agent is saturated with humidity.
Overpressure Control and Venting in Tank Ventilation Systems
If the specified pressure is reached in the examples shown in figures 4 or 5 the pressure side of the combined
pressure and vacuum relief valve
Soupape de surpression et dépression
A pressure and vacuum relief valve is a pressure equalization valve for impermissible pressure and vacuum in a closed system.
opens and the product vapour/air mixture escapes into the atmosphere. The valve could be for instance PROTEGO® Type VD/SV or DV/ZU. Alternatively it is possible to pass the product vapour/air mixture through a suitable valve – e.g. PROTEGO® Type DV/ZU into an exhaust line or exhaust system. Under pressure the vacuum side of the above valves remains closed and the product vapours cannot pass into the drying agent.
Combined Pressure and Vacuum Relief Valve
In larger tanks it is recommended to also use combined pressure and vacuum relief valves e.g. PROTEGO® Type VD/SV. This ensures that in an emergency (failure of air-drying device) atmospheric air can be sucked in directly through the vacuum side. Often direct atmospheric emergency venting is required yet it is neither possible nor necessary to size the air-drying device for the maximum volume flow calculated (pump flow-rate and thermal flow according to EN 14015 or API 2000). Maximum thermal flow occurs only rarely and it is therefore usually sufficient to size the air-drying device according to the pump flow-rate for emptying and a thermal flow portion of approximately 25%.
Air Drying Unit with Integrated Vacuum Relief Valve
Essentially, the Air-Drying Device of Types PROTEGO® LA/V functions like type PROTEGO® LA. However, a check valve allows inbreathing only when the entire
venting system
Système de ventilation
System which consists of pipeline and devices for free out-breathing and in-breathing of plant components.
– the tank and the drying container – is under vacuum at the
set pressure
Pression de réponse
Set pressure is the gauge pressure at the device inlet at which the relief device is set to start opening under service conditions.
of the check valve.
The devices are designed for venting rates sufficient for the breathing of storage tanks. However, they do not replace any valves designed for emergency venting.
Monitoring and Combination of Air Drying Units
The drying agent saturation can be easily monitored using a control cartridge. The drying agent can be regenerated. Drying agent and control drying pearls are not included in the PROTEGO® LA or LA/V and can optionally be ordered together with the device.
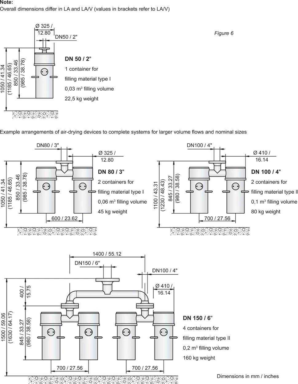
Figure 6 shows the combination options of PROTEGO® LA/V air-drying device in complete units. The overall dimensions, filling volumes and filling weights are also given in this figure.
Product Data
Material selection Typ LA
| Design | A | B | |
| Housing | Steel | Stainless Steel | |
| Bottom screen | Stainless Steel | Stainless Steel | |
| Protective strainer | Stainless Steel | Stainless Steel | |
| Cover | Steel | Stainless Steel |
Material selection Typ LA/V
| Design | A | B |
| Housing | Steel | Stainless Steel |
| Bottom screen | Steel | Stainless Steel |
| Protective strainer | Stainless Steel | Stainless Steel |
| Cover | Steel | Stainless Steel |
| Valve insert | Stainless Steel | Stainless Steel |
Material selection for vacuum relief valve
| Design | A | B | C |
| Vacuum range [mbar] [inch W.C.] | -3.5 up to -5.0 -1.4 up to -2.0 | ≥-5.0 up to -14 ≥-1.4 up to -5.6 | ≥-14 up to -35 ≥-5.6 up to -14 |
| Valve pallet | Aluminium | Stainless Steel | Stainless Steel |
| Sealing | FEP | FEP | Metal to Metal |
Flow Capacity Chart
The stated capacities are valid for the single device PROTEGO® LA and refer to the filling material KC® dryer pearls of 2 up to 5 mm Diameter. The totel pressure drop of typ PROTEGO® LA/V is ∆pLA/V results from the differential pressure ∆pLA/V plus adjusted Setting of vacuum valve pVR.
Si vous avez des questions, des commentaires ou des suggestions, notre équipe d'experts se fera un plaisir de vous aider.


